ItalianoEnglishDeutsch
2000 m2
A Chiasso, in posizione strategica e ben collegata ai principali servizi, proponiamo in vendita un'intera palazzina residenziale di sicuro interesse per investitori.

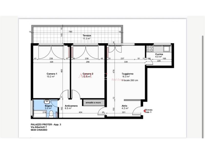
L'edificio si sviluppa su 8 piani, con 5 appartamenti per piano, oltre a 1 appartamento al piano terra, per un totale di unità abitative ben distribuite e molto richieste sul mercato locativo. Gli appartamenti sono suddivisi in diverse metrature - 1,5/2,5/3/3,5 locali - una combinazione ideale per soddisfare le esigenze di single, coppie e piccoli nuclei familiari.

La palazzina è dotata di ascensore, balconi e spazi comuni curati, mentre il sistema di riscaldamento è alimentato a nafta.

Nel corso degli anni la proprietà è stata oggetto di importanti interventi di manutenzione e rinnovo dal 2012 al 2025, che ne garantiscono oggi un ottimo stato generale e una gestione senza necessità di interventi immediati.

Tra i lavori eseguiti figurano:

- sostituzione dei serramenti
- rifacimento completo del tetto
- sistemazione della strada di accesso all'entrata
- sostituzione del vaso di espansione
- pulizia delle canalizzazioni
- sostituzione del bruciatore della caldaia
- risanamento dei pluviali
- risanamento dei balconi
- ritinteggiatura dell'atrio e delle porte degli ascensori

Prezzo di vendita: CHF 9'300'000

Una rara opportunità a Chiasso: una palazzina completa, ben mantenuta e con ottime prospettive di rendimento.


Cod: SC11

Caratteristiche principali

Codice
SC11
Prezzo
9.300.000 CHF
Classe
NC
Locali
41

Altre caratteristiche e accessori

Stato Immobile
Ottimo
Grado
Medio
Posizione
Periferia
Totale Piani
Otto
Riscaldamento
Centralizzato
Tipo Impianto
Termosifoni
Fonte Energetica
Gasolio
Acqua Calda
Autonoma
Raffrescamento
No
Infissi
PVC
Serramenti
Buono
Appartamenti
Dieci o Più
Destinato a residenti
Si
Accessori
Armadio a muro, Ascensore, Doppi Vetri, Lavanderia
Cookie preference
Prenota una visita